物件の条件を選択
- …
注目: 【売土地|田中】前道6mを活かして愛車をスムーズに出し入れするガレージハウス?それとも東向きの光を浴びる心地よいお庭のある暮らし?ライフスタイルで選べる個性豊かな2つの選択肢。建築条件はございませんので、ご家族の理想をカタチにする自由な家づくりを楽しめます。左京区不動産で、利便性と快適さを兼ね備えた新生活の一歩を踏み出しませんか。ぜひ現地でお確かめください。
注目: 【売土地|田中】人気の北白川エリアで総額を抑えて憧れの注文住宅を。ライフ徒歩5分、前道6mのゆとりが叶える、子育て世代にちょうどいいサイズの限定2区画です。建築条件はございませんので、ご家族の理想をカタチにする自由な家づくりを楽しめます。左京区不動産で、利便性と快適さを兼ね備えた新生活の一歩を踏み出しませんか。ぜひ現地でお確かめください。
注目: 【売土地|田中】爽やかな朝の光が差し込む、東向きの広々とした売土地です。前面道路は幅6mとゆとりがあり、お車の出し入れや日々の送り迎えもスムーズ。ライフ北白川店まで徒歩5分(約380m)と近く、毎日のお買い物も大変便利な暮らしやすい環境です。建築条件はございませんので、ご家族の理想をカタチにする自由な家づくりを楽しめます。左京区不動産で、利便性と快適さを兼ね備えた新生活の一歩を踏み出しませんか。ぜひ現地でお確かめください。
注目: 【中古戸建|静市】緑豊かな山並みに囲まれ、穏やかな空気が流れる静市市原町の収益物件です。叡山電鉄の駅が利用でき、自然に癒やされる静かな住環境を求める単身者やファミリー層に根強い人気があります。現在はオーナーチェンジ物件として賃貸中のため、購入後からスムーズに運用をスタートできる安心感が魅力です。左京区不動産の中でも、自然に寄り添うロケーションと手堅い資産形成を兼ね備えた物件。ぜひ詳細をお気軽にお問い合わせください。
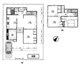
注目: 【中古戸建|岡崎】平安神宮や岡崎公園の豊かな緑に心癒やされる、格式高い和風建築の注文住宅です。約64坪の広々とした敷地には、美しいお庭と大切な愛車を守る電動シャッター付き車庫を完備。スーパーまで徒歩4分と、日々のお買い物もスムーズです。歴史と文化が息づく街で、季節の移ろいを感じながら、ゆとりある丁寧な暮らしを送ってみませんか。左京区不動産で、趣ある上質な住まいをお探しの方にふさわしい邸宅です。ぜひ現地をご覧ください。
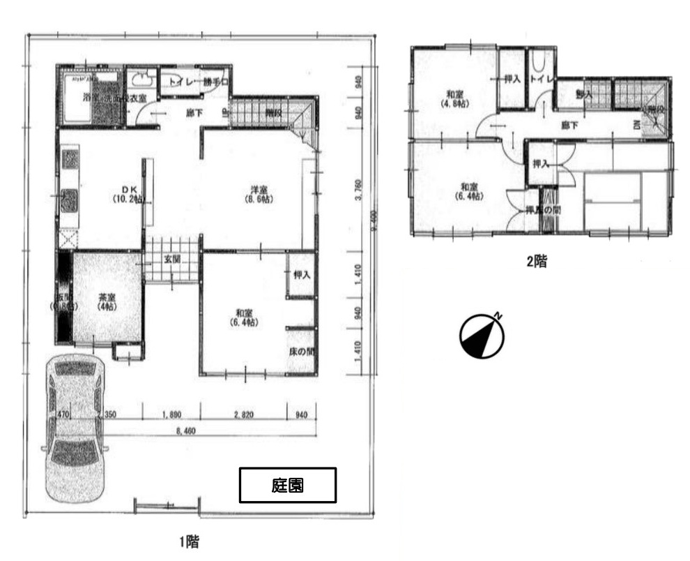
注目: 【中古戸建て|岩倉】約64坪のゆとりある敷地に佇む、こだわりが詰まった注文住宅です。3LDKの間取りには心地よい光が差し込み、丁寧につくられた空間ならではの温かみを感じられます。広々としたお庭では、ガーデニングや日々のお子様の遊び場、週末のバーベキューなど、家族の笑顔が広がる時間が過ごせそうです。駐車スペースも3台分あり、来客時も安心。左京区不動産で、のびのびとした心豊かな暮らしを始めませんか。ぜひ現地をご覧ください。
注目: 【中古戸建て|岩倉】心地よい光に包まれる、南西角地の明るい中古戸建てです。南向きで日当たりが良く、前面道路は車の交通量が少なめなので、小さなお子様がいるご家庭も安心して静かな毎日を過ごせます。周辺の豊かな自然を感じながら、家族みんながのびのびと笑顔で暮らせる温かな住まいです。現在は空家のため、スケジュールを気にせずゆっくりと室内をご確認いただけます。左京区不動産で穏やかな新生活を始めたい方は、ぜひご覧ください。
注目: 【収益物件|吉田】出町柳駅から徒歩6分、2路線利用可能な好立地に佇む一棟マンション「ベルセゾン」です。京都大学が近く、学生や単身者用の住居としてはもちろん、リモートワーク用の書斎やワークスペースとしての需要も期待できるのが魅力。周辺は鴨川も近く、京都らしい情緒と暮らしやすさが同居した人気のエリアです。左京区不動産の中でも、多様なライフスタイルに応える安定した運用を目指せる物件。将来を見据えた資産形成の現地確認へ、ぜひお越しください。
注目: 【売土地|岩倉】地下鉄国際会館駅から徒歩10分の便利な場所に、開放感あふれる東南角地の分譲地が登場しました。陽当たりや通風に恵まれたこの場所なら、明るい光が差し込む理想の住まいが実現できます。建築条件付きですが、ご家族のライフスタイルに合わせた自由な間取り設計が可能です。前面道路の幅も6mと広く、お車の出し入れもスムーズ。左京区不動産で、予算も計画も安心の家づくりを始めませんか。ぜひ現地でお確かめください。
注目: 【売土地|岩倉】地下鉄国際会館駅から徒歩10分の便利な場所に、開放感あふれる東南角地の更地が登場しました。陽当たりや通風に恵まれたこの場所なら、明るく心地よい光が差し込む理想の住まいが実現できます。建築条件はございませんので、お好みのハウスメーカーでご家族のこだわりを自由にカタチにしていただけます。前面道路の幅も6mと広く、お車の出し入れもスムーズ。左京区不動産で一から理想の家づくりを始めませんか。ぜひ現地でお確かめください。
- …




















