物件の条件を選択
注目: 【左京区不動産】落ち着いた街並みと自然が調和する左京区吉田神楽岡町の新築戸建て。ZEH水準の省エネ住宅で、快適さと経済性を両立した暮らしが叶います。前面道路はゆとりの6mで駐車もスムーズ。フレスコ白川店(約272m)やファミリーマート銀閣寺白川通店(約407m)など、生活利便施設が充実しています。すぐ近くの公園ではお子様やペットとの散歩も楽しめ、静かな環境で安心して子育てできる左京区不動産としておすすめです。
注目: 【左京区岩倉花園町 | 自然と利便性を両立した暮らし】左京区岩倉花園町の新築戸建て。約6mの広い前面道路で開放感抜群。Aコープ岩倉(約400m)、ドラッグユタカ三宅八幡店(約800m)も近く、日常の買い物に便利。落ち着いた住宅街で、子育て世代にも安心の環境。宝ヶ池の自然に囲まれ、休日は家族で散策を楽しみながら、ゆったりとしたライフスタイルを実現しませんか?
注目: 【左京区不動産】高野竹屋町に誕生した新築戸建ては、便利さと落ち着きを兼ね備えた住環境が魅力。イズミヤ高野ショッピングセンター(約320m)や洛北阪急スクエア(約518m)が徒歩圏内にあり、毎日のお買い物や休日のちょっとしたお出かけにも便利です。交通アクセスも良く、子育て世代から共働き世帯まで幅広く対応。穏やかな左京区の街並みで、便利さに包まれた心地よい暮らしを始めてみませんか。
注目: 【左京区不動産】岩倉長谷町に誕生した新築戸建ては、制震ダンパーを備えた安心設計。カースペースは並列3台駐車可能(車種による)で、ご家族での車利用にも便利です。室内物干しやパントリー、ワイド洗面台など、日々の暮らしを快適にする工夫が詰まった高仕様。自然豊かな環境にありながら、生活利便施設も整い、子育て世帯にもおすすめです。ゆとりある空間で、穏やかな左京区ライフをはじめてみませんか。
注目: 【左京区不動産】四季の移ろいを感じながら、薪ストーブの温もりに包まれる暮らしを左京区岩倉下在地町で実現しませんか?落ち着いた住宅街に佇む新築戸建ては、自然と調和した生活を求める方にぴったり。Aコープ岩倉店(約320m)やコープいわくら(約480m)など買い物施設も充実しており、日常生活も快適。初めてこのエリアで暮らす方にも安心の環境です。週末にはご家族で宝ヶ池方面へ散歩を楽しむ、そんな穏やかな日常が待っています。
注目: 左京区不動産をお探しの方に、田中高原町の新築住宅をご紹介。広々とした収納スペースで、お部屋をすっきり保ちながら快適な暮らしを実現。前面道路は約5.9mとゆとりがあり、車での移動もスムーズです。ライフ北白川店(約480m)やダックス左京一乗寺店(約421m)が徒歩圏内で、日常の買い物に便利。落ち着いた住宅街に位置し、初めて左京区で暮らす方にも安心の立地です。新しい生活を始める方に最適な住まいです。
注目: 左京区不動産の中でも、ゆとりある暮らしを叶える静市市原町の新築住宅。北西角地に建ち、土地は約40坪、前面道路も6.0mと広々としており、車2台を停められる駐車スペース付きです。18帖の明るいリビングは家族が自然と集まる心地よい空間。各居室に収納を備え、すっきりとした暮らしを実現できます。落ち着いた住宅地ながら、自然豊かな環境も魅力で、休日は家族で散歩やドライブを楽しむ生活がイメージできる住まいです。
注目: 左京区不動産をお探しの方におすすめの新築住宅です。静市市原町は自然が豊かで、休日には宝ヶ池方面へ散歩やジョギングを楽しめる環境。ゆとりある道路幅員6.0mに面し、駐車スペースも2台分確保されています。2ヶ所のウォークインクローゼットは衣類や季節物の収納に便利で、家事動線も考えられた間取りが魅力。落ち着いた住宅街ながら、日々の暮らしに安心感を与えてくれる住まいです。
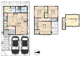
注目: 一乗寺松田町の静かな環境に佇む新築戸建て。ガス衣類乾燥機「乾太くん」や床暖房付きリビングで、快適な毎日を。広々とした収納庫と全居室収納で、すっきり暮らせます。車2台駐車可で、週末のドライブも安心。業務スーパー北白川店(徒歩5分、400m)、フレスコ修学院店(徒歩6分、450m)、ダックス左京山端店(徒歩5分、350m)が近く、買い物に便利。耐震等級3で安心の住まい。自然と利便性を両立したい子育て世代におススメですね。
注目: 一乗寺松田町の閑静な住宅街に佇む新築戸建て。ガス衣類乾燥機「乾太くん」や床暖房付きリビング、収納力抜群の大空間収納庫で快適な暮らしを。車2台駐車可で、家族の移動もスムーズ。業務スーパー北白川店(徒歩5分、400m)、フレスコ修学院店(徒歩6分、450m)、ダックス左京山端店(徒歩5分、350m)が近く、買い物に便利。耐震等級3取得で安心の住まい。子育て家族やゆとりある生活を求める方に最適です。

















.jpg&w=256&q=75)

.jpg&w=256&q=75)
