物件の条件を選択
- …
注目: 【左京区不動産】左京区静市市原町にある中古戸建てです。自然に囲まれた穏やかな環境で、季節の移ろいを感じながら落ち着いた毎日を過ごせます。約19帖の広々としたリビングは、家族が自然と集まり、会話が弾む心地よい空間です。床の間付きの和室もあり、くつろぎの時間や来客時にも重宝します。ゆったり暮らしたい方におすすめの住まい。左京区不動産をお探しの方は、ぜひ一度ご覧ください。
注目: 【左京区不動産|北白川】左京区北白川小倉町に佇む、京町家プロフィール付きの趣ある京町家住宅です。区画整理された落ち着いた街並みにあり、前面道路は幅員約5.9mと開放感があります。駐車スペースはありませんが、その分、静かで整った住環境が魅力です。町家ならではの風合いを感じながら、ゆったりとした時間が流れる毎日を楽しめます。左京区不動産で伝統ある住まいをお探しの方は、ぜひ現地でご覧ください。
注目: 【左京区不動産|松ヶ崎】左京区松ヶ崎樋ノ上町に佇む、大和ハウス施工の中古戸建てです。令和8年1月に改装済みで、気持ちよく新生活を始められます。落ち着いた住環境に恵まれ、日々の暮らしにゆとりを感じられる立地です。1階和室には掘りごたつがあり、家族で囲む団らんの時間や、ほっと一息つく夜が自然と増えそうです。住むほどに愛着が深まる一邸。左京区不動産をお探しの方は、ぜひ一度ご覧ください。
注目: 【左京区不動産|岩倉】左京区岩倉三笠町にある中古戸建てです。オール電化住宅のため、日々の家事も安心して行え、暮らしのリズムが整います。叡山電鉄と地下鉄の両方が利用でき、通勤やお出かけにも便利な立地です。周辺は落ち着いた住環境で、家に帰るたびにほっとできる時間が待っています。左京区不動産をお探しの方に、暮らしやすさを実感していただける住まいです。ぜひ一度ご覧ください。
注目: 【左京区不動産|岡崎】左京区岡崎法勝寺町にある中古戸建ては、暮らしやすさと京都らしい環境を身近に感じられる住まいです。徒歩4分のフレスコ岡崎店(約318m)で日々の買い物もスムーズ。平安神宮(約662m)へは徒歩9分と、四季の移ろいを散策で楽しめる立地です。落ち着いた街並みの中で、家族との時間や自分らしい日常が自然と育まれます。左京区不動産をお探しの方は、ぜひ一度現地でこの雰囲気をご覧ください。
注目: 【左京区不動産|吉田】左京区吉田中大路町にある中古戸建てです。京間サイズの畳を使った和室は、足を伸ばしてくつろげる心地よさが魅力で、お部屋全体がゆったりと感じられます。はなれ付きのため、在宅ワークの書斎や趣味の空間など、暮らしに合わせた使い方が広がります。フレスコ白川店へ徒歩13分(約1000m)と日常のお買い物も安心。落ち着いた環境で自分らしい毎日を叶える左京区不動産です。ぜひ現地でご覧ください。
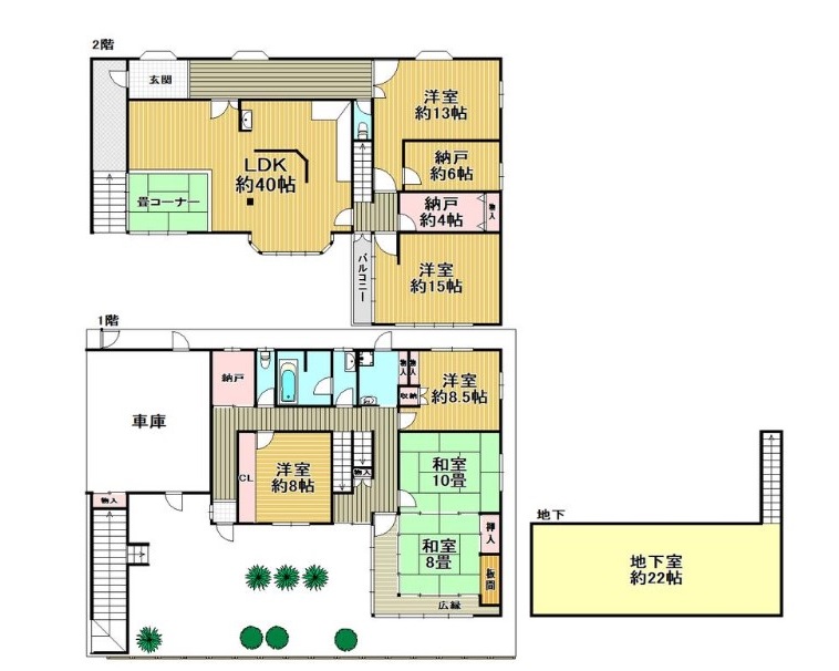
注目: 【左京区不動産|静原】左京区静市静原町に佇む中古戸建て。約180坪のゆとりある敷地には、畑や家庭菜園を楽しめる余白が広がり、季節の移ろいを身近に感じながら暮らせます。朝は土に触れ、夕方は静かな環境でほっと一息。自然に囲まれつつも、日々の生活に無理のない立地が魅力です。家族との時間や自分らしい暮らしを大切にしたい方におすすめの一邸。左京区不動産をお探しの方は、ぜひ一度ご覧ください。
注目: 【左京区不動産|岩倉】左京区岩倉長谷町にある中古戸建てです。カーポート付きで2台駐車が可能なため、ご家族での暮らしにも安心。和室のある住まいは、くつろぎの時間や来客時にも重宝します。収納スペースが充実しており、日々の片付けもすっきり。作業しやすいL字型キッチンで、料理の時間も楽しくなりそうです。コープいわくらまで徒歩11分(約825m)と生活環境も良好。左京区不動産をお探しの方は、ぜひ一度ご覧ください。
注目: 【左京区不動産|吉田】左京区吉田神楽岡町にある中古戸建てです。高台ならではの落ち着いた住環境で、窓を開ければ季節の移ろいを身近に感じられます。リビングからは、夏の夜空を彩る五山の送り火を眺められ、家にいながら京都らしいひとときを楽しめるのが魅力。日常と特別な時間が自然に重なる暮らしが思い浮かびます。左京区不動産をお探しの方に、ぜひ現地でこの景色をご覧いただきたい一邸です。
注目: 【左京区不動産|田中】左京区田中南西浦町にある中古戸建てです。現状は空家のため、ゆっくり室内をご覧いただけます。お引き渡し前にはハウスクリーニングを行うので、気持ちよく新生活を始められるのも嬉しいポイントです。周辺は落ち着いた住環境で、日々の暮らしにちょうどよい距離感があります。自分らしい住まいづくりを考えながら、穏やかな毎日を思い描ける一邸です。左京区不動産をお探しの方、ぜひご覧ください。
- …











.jpg&w=256&q=75)

.jpg&w=256&q=75)
.jpg&w=256&q=75)





